Medical & Beauty: The Design

The use of computer-aided-design (CAD) technology in salon planning has allowed customers a previously unheard of insight into how their new salon will look when finished. This small section shows how our experienced salon designers can help guide you through the process from beginning to end, or... From concept to completion.

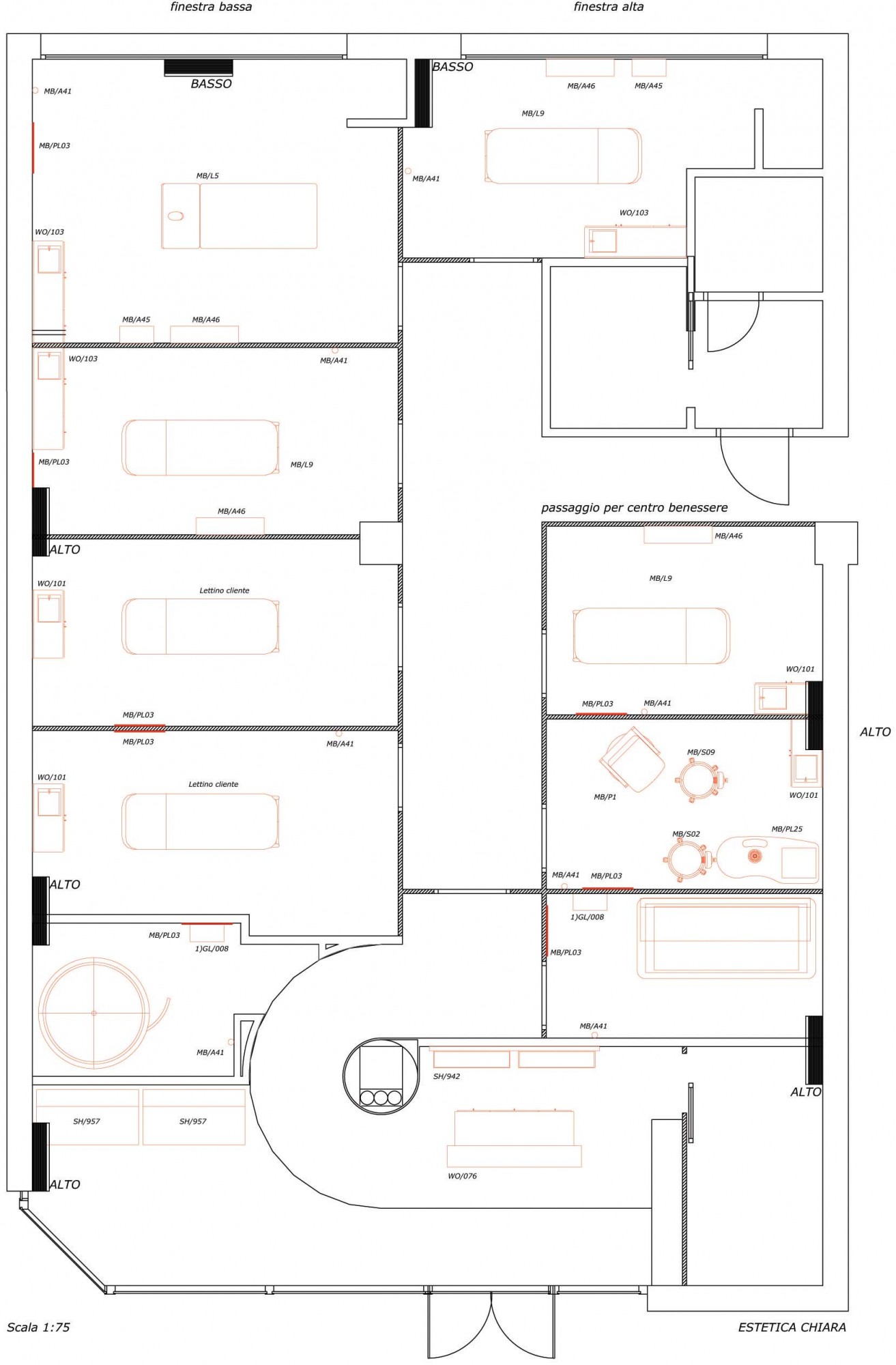
Phase 1

A two-dimensional design, created at the Medical and Beauty Design Centre. This format is used to show the customer the exact layout of their new salon.

Phase 2

After the 2D design comes the ‘photo-rendering’, a design which incorporates 3D, colours and textures into the design. This is an extremely useful tool for showing somebody exactly how their salon will look when finished.

Phase 3

Another design showing the possibilities of the ‘photo-rendering’ tool, this time from inside the salon. This can allow the possibility to show more specific details of the salon.

Phase 4

When the project design is accepted by the salon owner, it is then possible to start work on fully realising the new salon.